參考編號: BR055207
713
1
1
44.00
-
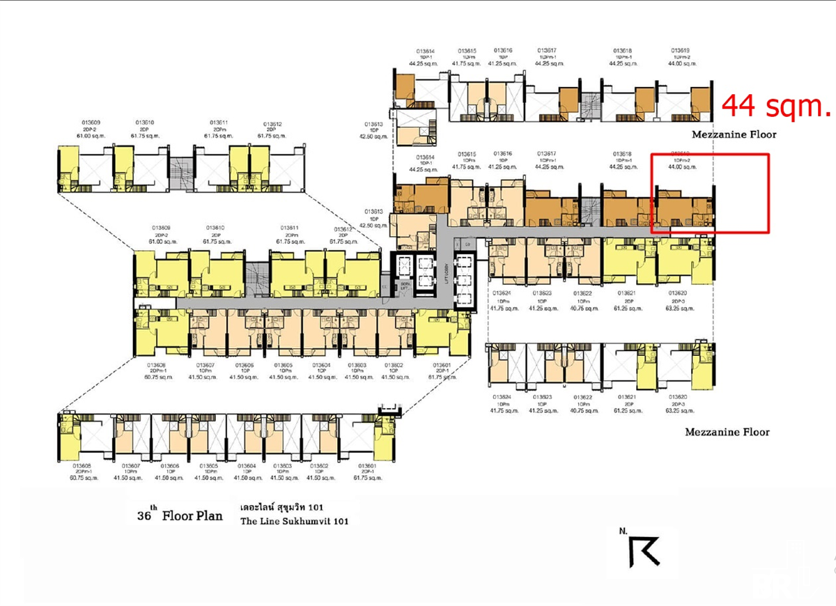
1br.复式 44 平方米。转角房,装修精美,东,36楼。
____________________________________
The Line sukhumvit 101 出租(出租)
1br。复式,面宽,层高5.5米
36层,19号位,面积44平方米。 (最大房型为一居室复式)
____________________________________
房间详情
+ 稀有单位,1br.复式房“宽前”是稀有房间,因为大楼内很少有
+ 精装修,家具齐全,可入住
+ 房间在36楼,楼层高,风景好,朝东,不热
+ 房间在角落里,房间前面没有人走过,安静,不混乱
+ 客厅宽敞,挑高5.5米,落地大玻璃,通风舒适
+ 这是一间宽敞的 1 居复式房间,有卧室大小,厨房比其他 1 居复式房间更大(位置 19)
+ 全套电器 准备入住
- 客厅55英寸智能电视,卧室45英寸智能电视
- 两门变频冰箱 - 前置式洗衣机
- 热水器
- 微波炉
剪辑 vdo
https://youtu.be/15cG8HaYOsY
The Line Sukhumvit 101(素坤逸101线)位于曼谷Phra Khanong District Bang Chak Subdistrict 3007/3 Sukhumvit Road,邮编10260。The Line Sukhumvit 101的结构于2020年竣工。该公寓为一栋单栋建筑,共37层,共有778个单位。 设施 The Line Sukhumvit 101 (The Line Sukhumvit 101) 的设施包括电梯、停车场、24 小时保安、闭路电视、游泳池、桑拿、健身、花园/烧烤区、游乐场/儿童区。项目内的商店 Wi-Fi 项目内的餐厅,公共费用为每平方米 65 泰铢。每月,基金费每平方米500泰铢。 地点 公寓距离皮亚罗姆广场(Piyarom Place)有930米。 托普斯市场 (Piyarom) – 930 米 暹罗天堂夜市 – 960 米 送货 – 1.1 公里。 Akhanat 广场 – 1.7 公里。 7-11便利店距离大楼仅3分钟步行路程。 Phi Phatthana 学校距离约 710 米 Samaharn Suksa 学校 – 850 米 Wells International School, On Nut Branch – 1.2 公里。 Somthawin 学校 – 1.3 公里 Wat Thammongkol 学校 (Luang Pho Wiriyang Uppatham) – 1.3 公里 卫生球 – 100 米 A&W – 240 米 Bistro 54 – 470 米 钦拉 – 710 米 Kluaynamthai 2 Hospital 是最近的医院,距离公寓 2 公里。开车大约需要8分钟。 联系以获取更多信息
02-258-8189
193/47 12A Floor, Lake Rajada office complex 193 Ratchadapisek Rd., Klongtoey, Bangkok 10110
2024 thebkkresidence.com. All Rights Reserved